Badkonzept für eine ungenutzte Immobilie
Budapest, 1.115 m²
Projektübersicht
Die konzeptionelle Studie zur Wiederverwendung des lange verlassenen Gebäudes am Donauufer verfolgt das Ziel, ein multifunktionales Bade- und Lehrschwimmbecken zu schaffen. Die Planung basiert auf der harmonischen Verbindung von urbanem Umfeld und natürlichem Wasserufer, wodurch Besucher gleichzeitig Entspannung, sportliche Aktivität und die Aussicht auf die Donau genießen können.
Die Studie ist keine detaillierte Ausführungsplanung, sondern ein umfassendes Konzept, das das Potenzial des Gebäudes, seinen räumlichen Charakter, funktionale Möglichkeiten und ästhetische Leitlinien aufzeigt. Ziel ist es, Investoren und Interessenten eine klare Vorstellung der zukünftigen Entwicklung zu vermitteln und eine Grundlage für die Detailplanung zu bieten.
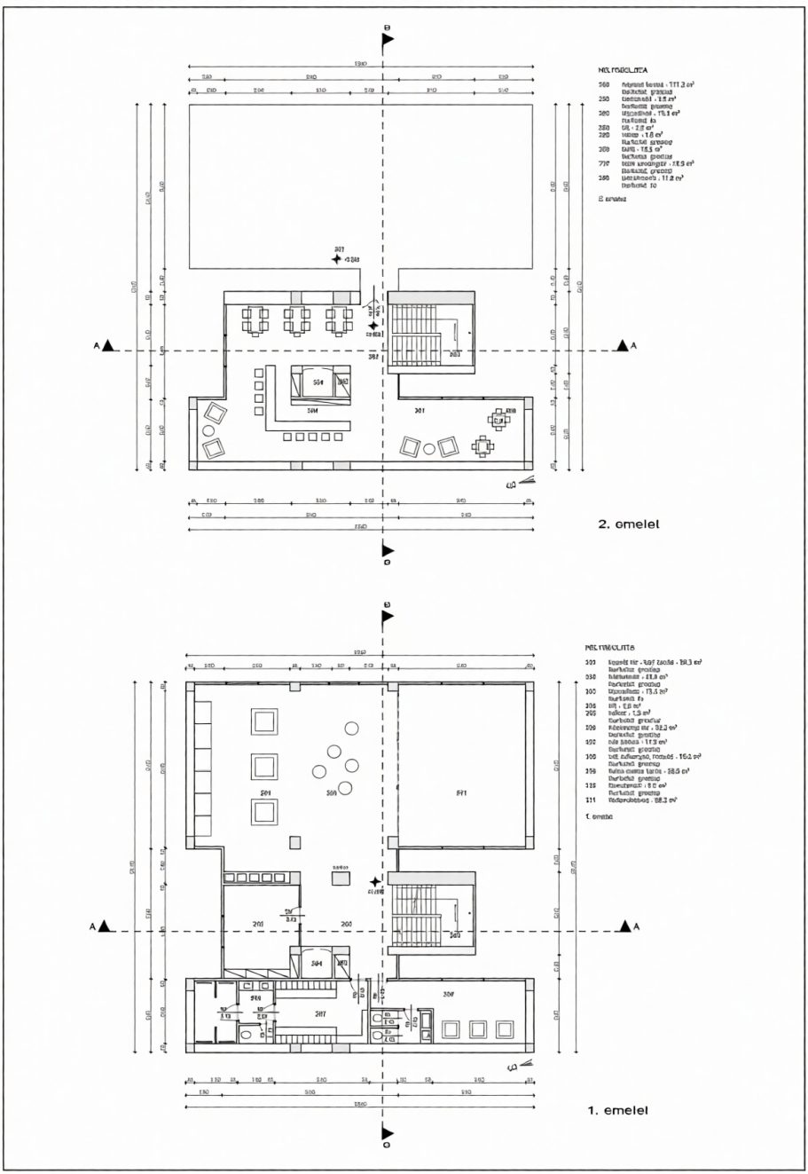
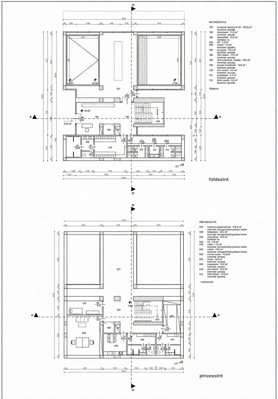
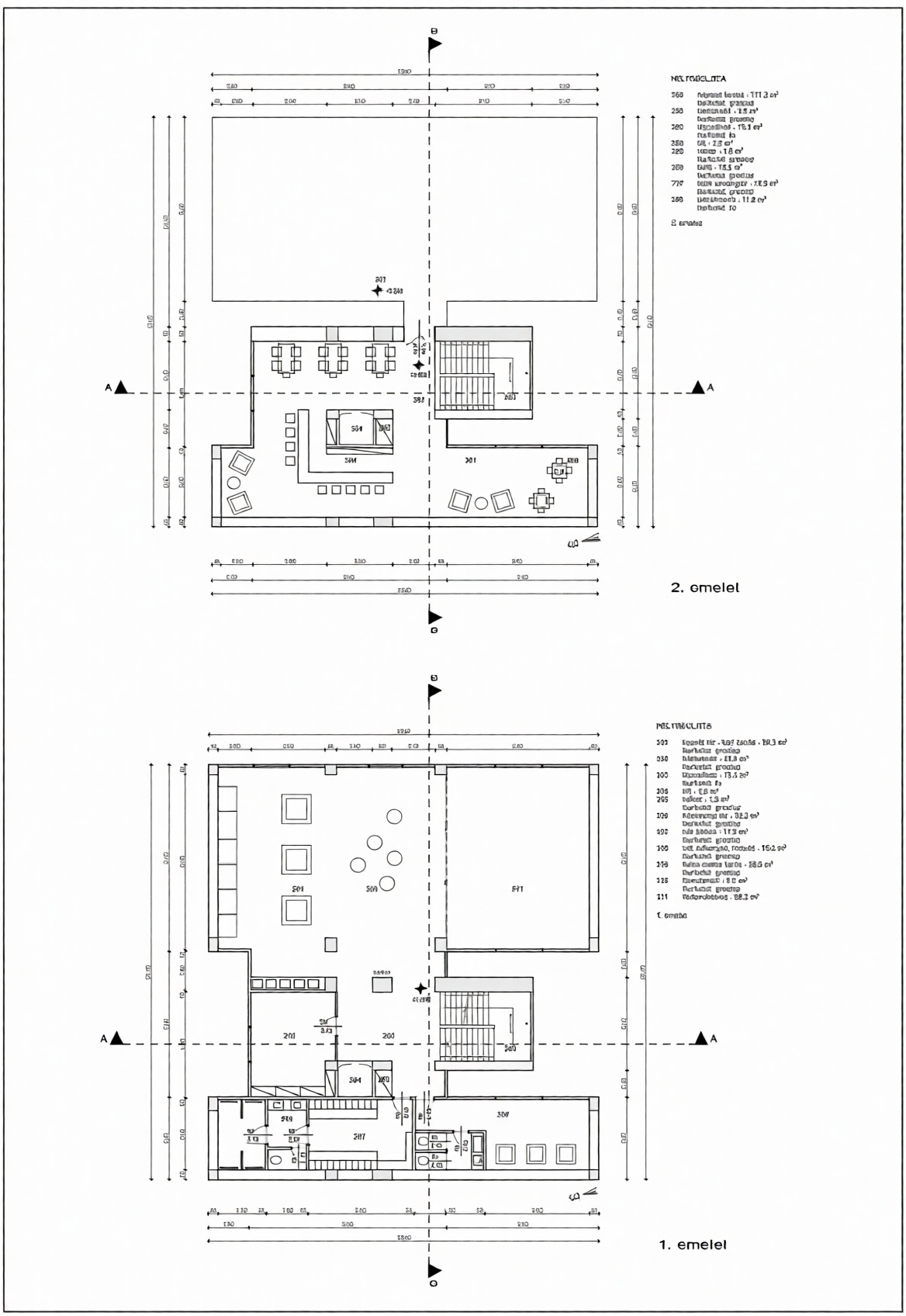
Funktionalität und Raumorganisation
Das Konzept umfasst folgende Hauptfunktionen und Erlebnisbereiche:
- Lehrschwimmbecken und Kinderbecken: speziell für Kinder konzipiertes Schwimmbecken, mit sicherer und gut überschaubarer Raumorganisation.
- Familien- und Badebereiche: Entspannungszonen für Familien, mit Sonnenterrasse und Donaupanorama.
- Bar- und Gemeinschaftsbereiche: Café/Bar für soziale Erlebnisse, leicht zugängliche Außenterrasse, visuelle Fokuspunkte.
- Verkehrs- und Betriebszonen: Logische Wegeführung für Besucher und Personal, um einen reibungslosen Ablauf sicherzustellen.
Ziel der Raumorganisation ist die Maximierung des Besuchererlebnisses, operative Effizienz sowie sichere und praktische Anordnung.
Stil und Raumerlebnis
Der visuelle Charakter des Innenraums wurde von natürlichen Materialien und der Atmosphäre des Wasserufers inspiriert:
- Holzähnliche Beläge: Schaffen eine warme, naturnahe Atmosphäre, erinnern an die Textur von Stegen.
- Aquamarinblaue Wandbeläge: Spiegeln die Farbe des Wassers wider, mit verschiedenen Schattierungen für Dynamik und visuellen Rhythmus.
- Wabenförmige Fliesen: Von Blau über Beige- und Brauntöne bis hin zu hellgelben Elementen, um Wasser, Sand und Sonnenschein zu repräsentieren.
- Fokuspunkte und Rhythmus: Farb- und Texturverläufe führen den Blick der Besucher, erzeugen visuelles Interesse und individuelle Charakteristik auf jeder Ebene.
Der Stil ist zeitlos, elegant und professionell, nicht trendabhängig, und unterstützt die Funktion des Bades und Lehrschwimmbeckens optimal.
Materialien und Details
- Haltbarkeit und leichte Pflege: Vorzugsweise wasserfeste, abriebfeste und langlebige Materialien.
- Visuelle Kohärenz: Holz-, Blau- und Erdtöne bilden ein einheitliches System im gesamten Gebäude.
- Feine Details: Beleuchtung, Sitzgelegenheiten, Terrassenmöbel und Dekorationselemente unterstützen Harmonie und Komfort.
Gesamteindruck
Die konzeptionelle Studie zeigt die Richtung für ein multifunktionales, visuell und funktional durchdachtes Bade- und Lehrschwimmbecken. Der Raum ist freundlich, zeitlos und inspirierend, unterstützt das Besuchererlebnis, Familienentspannung, sportliche Aktivitäten und bietet langfristig ein nachhaltiges, wertbeständiges Investitionskonzept.
Planungsphase: Konzeptstudie








