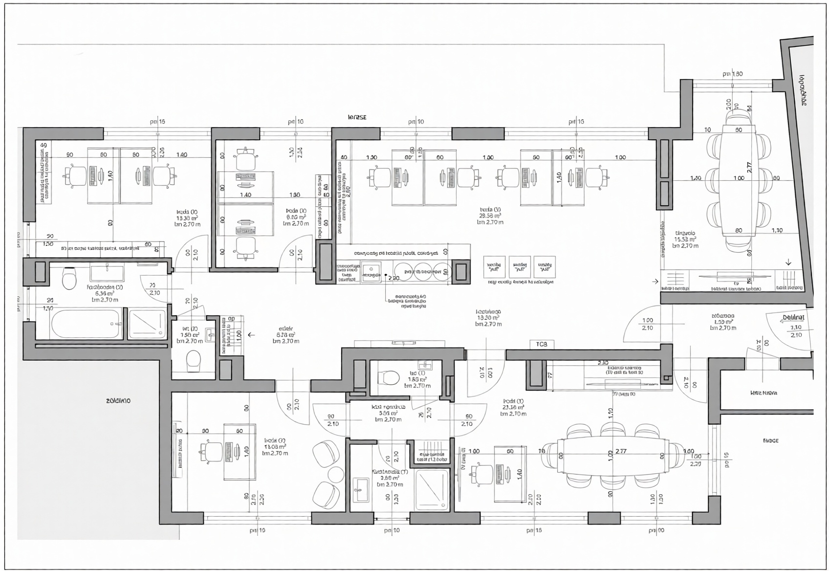
Büro – moderner, klarer Innenraum
Budapest, Fläche - 138 m²
Das Interieur ist geprägt von einem klaren, zeitgenössischen Bürodesign mit zurückhaltender Eleganz und bewusster Detailgestaltung.
Flure und Verkehrsflächen dienen nicht nur als Übergangszonen, sondern als aktive Elemente der visuellen Identität des Büros. Die entlang der Längswände verlaufenden Holzverkleidungen führen den Raum optisch und schaffen zugleich eine warme, menschliche Atmosphäre.
Farben und Atmosphäre
Die Farbpalette ist ausgewogen und zeitlos:
- Weiße Flächen für ein helles und klares Raumgefühl
- Helle Holztöne für Natürlichkeit und Wärme
- Warme Grau- und Schwarzakzente zur Betonung des professionellen Erscheinungsbildes
Das Gesamtbild ergibt eine ruhige, fokussierte Arbeitsumgebung, die auch langfristig relevant bleibt.
Materialität und Details
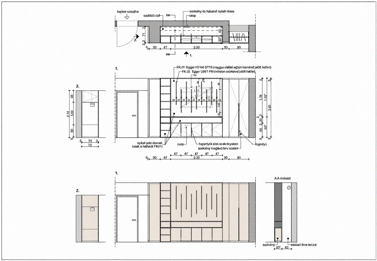
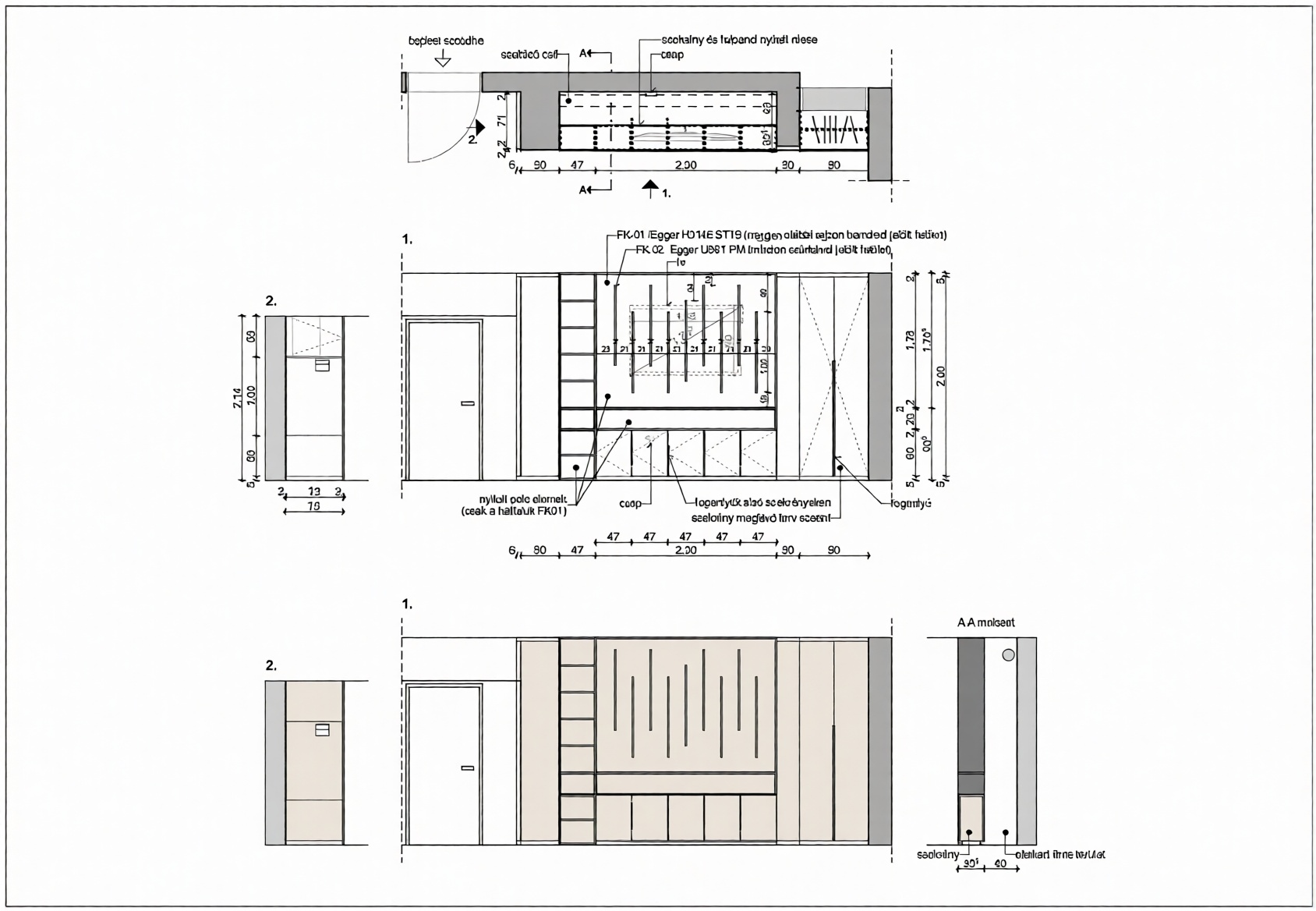
Ein zentrales Element des Innenraumkonzepts ist die wandverkleidende Holzstruktur, die dem Raum durch ihre rhythmische Anordnung einen starken visuellen Charakter verleiht.
- Vertikale Linienführung für mehr Dynamik im Raum
- Elemente in variierenden Breiten erzeugen ein feines visuelles Spiel
- Langlebige, pflegeleichte Materialien, abgestimmt auf die Anforderungen des Büroalltags
Die maßgefertigten Einbaumöbel folgen einer einheitlichen Material- und Farbgestaltung und integrieren verdeckte Stauraumlösungen sowie klare Fronten – für Ordnung und Übersichtlichkeit.
Beleuchtung und Raumwirkung
Das Beleuchtungskonzept unterstützt komfortables und effizientes Arbeiten:
- Großzügiger Tageslichteinfall über große Fensterflächen
- Gezielt platzierte LED-Beleuchtung an jedem Arbeitsplatz
- Neutrales, weißes Allgemeinlicht (4000–5000 K) mit gleichmäßiger Lichtverteilung
Runde Leuchten bilden einen bewussten Kontrast zur linearen Rhythmik der Wandverkleidungen und schaffen ein ruhiges, ausgewogenes Raumgefühl.
Gesamteindruck
Das realisierte Büro präsentiert sich klar, funktional durchdacht und professionell.
Der Raum fördert effizientes Arbeiten, stärkt die Unternehmensidentität und bietet eine nachhaltige, langfristig wertbeständige innenarchitektonische Lösung.








