Funktionale Optimierung
60 m² Apartment
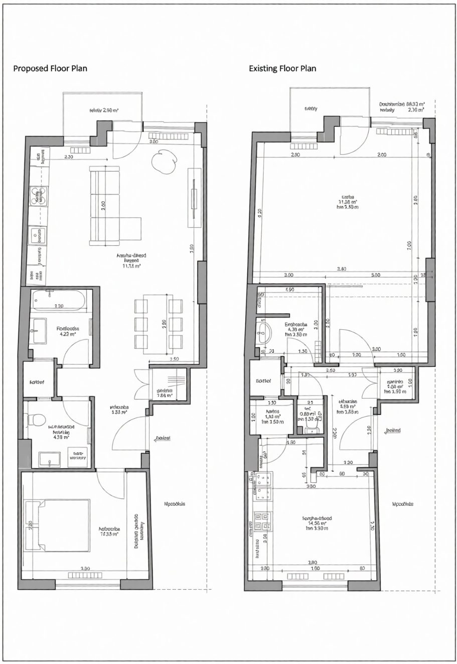
Diese 50 m² große Wohnung verfügte ursprünglich über ein einziges Wohn-/Schlafzimmer und eine verhältnismäßig ungewöhnlich große, separate Küche. Ziel des jungen männlichen Eigentümers war es, den bestehenden Grundriss funktional effizienter zu gestalten und besser an seinen Lebensstil anzupassen, während das Interieur einen markanten, männlichen Charakter erhielt.
Während der Planung wurde durch den Abriss der nicht tragenden Innenwände sowie die bewusste Neuanordnung der Funktionen eine neue Raumstruktur geschaffen. Daraus entstand ein separates Schlafzimmer sowie eine offene Küche, die mit dem Wohnzimmer einen zusammenhängenden Raum bildet. Diese Umgestaltung verbesserte nicht nur das Raumgefühl erheblich, sondern erhöhte auch die Alltagstauglichkeit der Wohnung auf ein neues Niveau.
Bei der Gestaltung der Sanitärräume war es ein ausdrücklicher Wunsch des Auftraggebers, dass Bad und WC in separaten Räumen untergebracht werden. Das WC wurde zusätzlich mit einer Waschküchenfunktion ausgestattet, sodass trotz der geringen Wohnfläche alle notwendigen Funktionen gut organisiert und logisch untergebracht werden konnten. Diese Art der Funktionalität ist insbesondere bei städtischen, kleineren Wohnungen von großer Bedeutung, wo Praktikabilität die Grundlage des täglichen Komforts bildet.
Der Austausch der Fassadenfenster erfolgte unter Berücksichtigung der Vorschriften, während die Innentüren und Einbaumöbel individuell entworfen und maßgefertigt wurden. Bei der Auswahl der Beläge und der Farbgestaltung dominieren dunklere, markante Töne, die dem Interieur einen klaren Charakter verleihen und gleichzeitig visuell harmonisch wirken. Die Lichtplanung setzt auf eine geschichtete Kombination aus funktionaler und stimmungsvoller Beleuchtung, sodass sich der Raum flexibel an unterschiedliche Lebenssituationen anpassen lässt.
Das Ergebnis der Umgestaltung ist ein Zuhause, das den Alltag des Eigentümers effizient unterstützt, visuell charakterstark ist und langfristig funktionierende, wertbeständige Lösungen bietet









