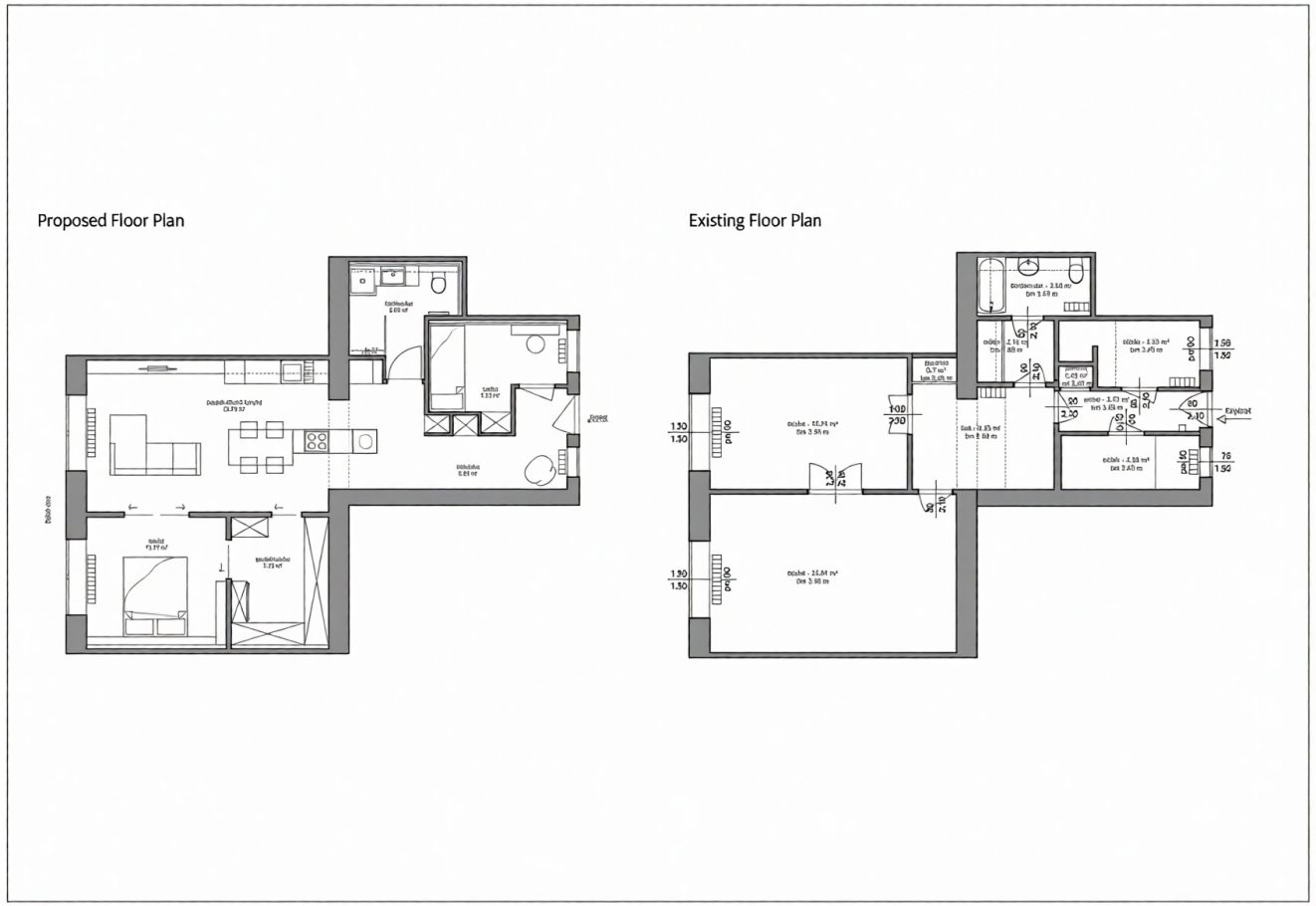
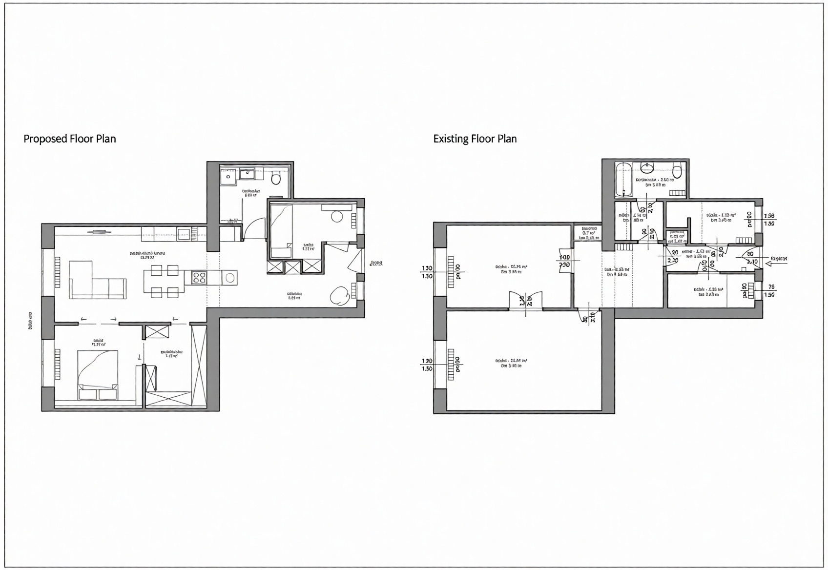
Vollständige räumliche Neustrukturierung
69 m² Classic Apartment
Diese 69 m² große bürgerliche Wohnung befindet sich im Herzen von Budapest, in unmittelbarer Nähe zum Parlament und zur Donau. Nach dem Kauf war das Ziel der Eigentümer, die Immobilie funktional und strukturell von Grund auf neu zu denken und ein modernes Zuhause zu schaffen, das ihren Alltag unterstützt und gleichzeitig die bürgerlichen Merkmale der Wohnung würdigt.
Ein zentraler Ausgangspunkt der Planung war die Schaffung eines offenen Küchen-Wohnbereichs, der nicht nur aus gestalterischer Sicht, sondern auch aus Lebensstilgründen entschieden wurde. Die Kücheninsel mit dem angrenzenden Esstisch wurde zum zentralen Element der Wohnung, an dem Kochen, Essen und geselliges Beisammensein auf natürliche Weise zusammenfließen. Außerdem bestand der ausdrückliche Wunsch nach einem separaten begehbaren Kleiderschrank sowie einem Gästezimmer neben dem Schlafzimmer.
Zur Umsetzung der Ideen wurden alle nicht tragenden Innenwände entfernt und neue Trennwände entsprechend dem neuen funktionalen Konzept errichtet. Diese Maßnahme ermöglichte die Optimierung der Raumproportionen sowie die Schaffung eines klareren, übersichtlicheren und logischeren Grundrisses. Die Neugestaltung der Raumstruktur verbesserte nicht nur die Nutzbarkeit, sondern auch die visuelle Qualität und das Raumgefühl der gesamten Wohnung erheblich.
Der Austausch der Fenster und Fassadenelemente erfolgte unter strenger Berücksichtigung der denkmalpflegerischen Vorgaben. Wo es die Raumstruktur zuließ, wurden im Innenbereich in die Wände integrierte Schiebetüren eingebaut, die den Flächenverlust durch Verkehrswege und Türöffnungen reduzieren und so die tatsächlich nutzbare Wohnfläche erhöhen. Solche Lösungen sind besonders wichtig in einer städtischen Wohnung, in der jeder Quadratmeter wertvoll ist.
Die Eigentümer hatten klare Vorstellungen bezüglich der Materialien, Farbwelten und des Stils der Möbel. Während der Planung wurden diese Ideen fachlich feinjustiert, um sicherzustellen, dass ästhetische Entscheidungen funktional, proportional und langfristig harmonisch wirken. Das Ergebnis der Umgestaltung ist ein harmonisches, wertbeständiges Zuhause, das Komfort, ästhetischen Genuss und den zukünftigen Wert der Immobilie gleichermaßen vereint.









