Funktionale Neuinterpretation
55 m² Wohnung
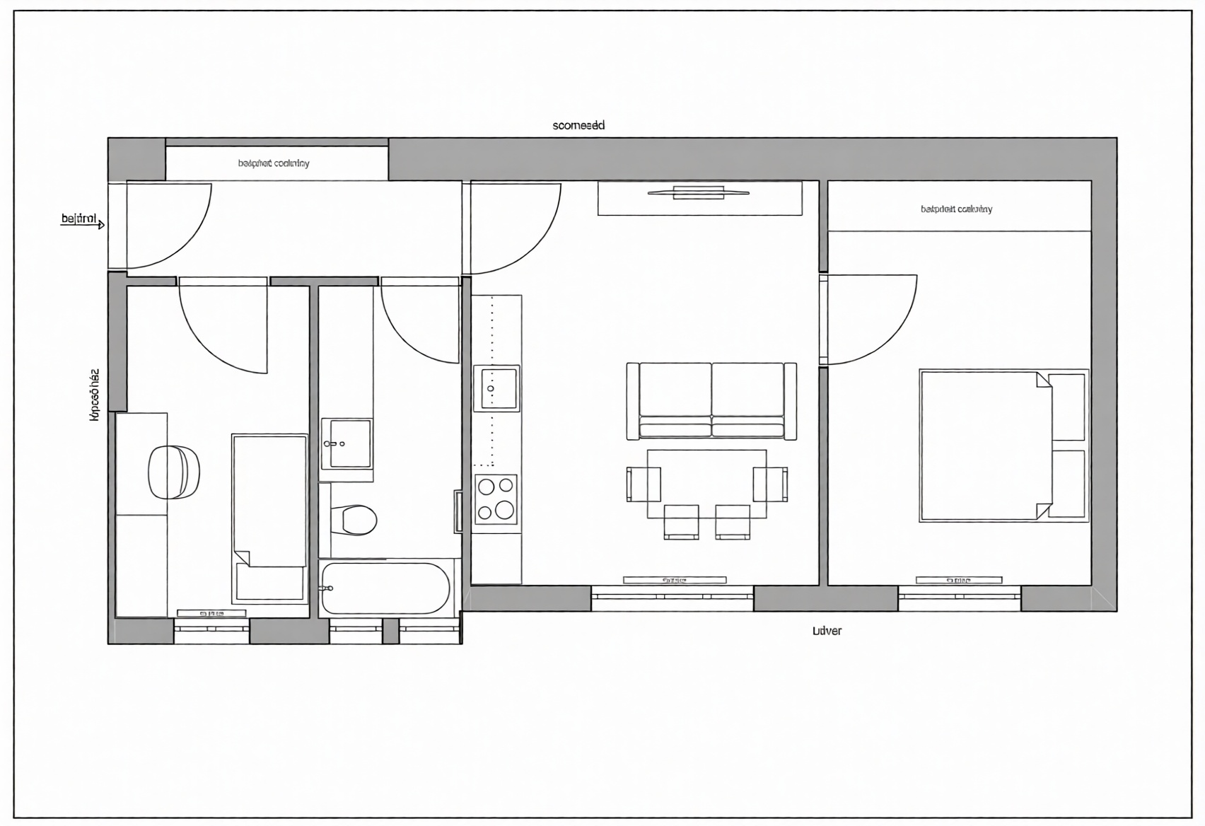
Diese 55 m² große Wohnung befand sich vor der Renovierung in einem insgesamt guten Zustand. Allerdings entsprachen der Grundriss und die funktionalen Zusammenhänge nicht dem Lebensstil der jungen Eigentümerin. Ziel des Auftrags war die Schaffung eines charakterstarken, bewusst organisierten Zuhauses, das Alltag, Arbeit und Entspannung gleichermaßen unterstützt.
Der Planungsprozess begann mit einer vollständigen Bestandsaufnahme der Wohnung. Bei Beibehaltung der tragenden Wände wurde die funktionale Anordnung vollständig neu gedacht. Der ursprünglich aus Wohnzimmer, Schlafzimmer und separater Küche bestehende Grundriss erlaubte keine eigenständige Arbeitszimmerlösung, die für die Eigentümerin von besonderer Bedeutung war.
Die Lösung bestand darin, Küche und Wohnzimmer zu einem offenen Raum zusammenzuführen. Dadurch konnte der freigewordene Bereich für ein separates Arbeitszimmer genutzt werden. Diese Umgestaltung bedeutete nicht nur eine funktionale Verbesserung, sondern verbesserte auch das Raumgefühl der gesamten Wohnung deutlich. Das Badezimmer blieb an seinem ursprünglichen Standort, wobei die innere Anordnung nun auf Praktikabilität und Ergonomie ausgerichtet wurde.
Der Stil der Wohnung wird durch moderne Linienführung und eine warme Farbpalette bestimmt, die eine gemütliche und gleichzeitig charaktervolle Atmosphäre schafft. Maßgefertigte Möbel nutzen den verfügbaren Raum optimal aus und wirken dabei visuell klar und reduziert. Die Küchenfront in markanter Farbe dient als bewusst gesetzter Blickfang und verleiht dem Interior einen jugendlichen, persönlichen Akzent.
Durch die Umgestaltung entstand eine Wohnung, die nicht nur den Bedürfnissen der Eigentümerin gerecht wird, sondern auch ihre Persönlichkeit widerspiegelt und langfristig funktionale, wertbeständige Lösungen bietet.







