Funktionale Neugestaltung und moderner Stil
50 m² Wohnung
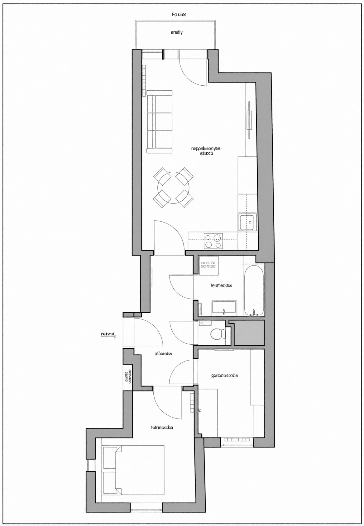
Diese 50 m² große Wohnung war technisch bezugsfertig, jedoch unterstützte der bestehende Grundriss und die Raumorganisation nicht den Lebensstil der Eigentümer. Ziel des Auftrags war eine umfassende Umgestaltung, die nicht nur eine ästhetische Auffrischung, sondern einen echten funktionalen Qualitätssprung bietet.
Die Renovierung begann mit dem Rückbau bis auf die rohen Wände, was eine vollständige Neukonzeption der Wohnung ermöglichte. Bei der Planung wurden die bestehenden Wände weitgehend beibehalten, dennoch wurden die Funktionen radikal verändert: Wohnzimmer und Küche wurden zu einem gemeinsamen Raum zusammengeführt, der eine offene, helle zentrale Zone schafft, die besser zum modernen Lebensstil passt. Anstelle der ursprünglichen Küche entstand ein großzügigeres Schlafzimmer, während aus dem vorher engen Schlafzimmer ein Ankleidezimmer wurde.
Diese neue Raumaufteilung erhöht den Nutzungskomfort erheblich, während die Wohnung trotz der kleinen Fläche deutlich geräumiger wirkt. Die Nassbereiche blieben an ihrer ursprünglichen Stelle, das Badezimmer erhielt jedoch eine funktional durchdachte, ergonomische Anordnung, die die tägliche Nutzung einfacher und komfortabler macht.
Die Farbgestaltung der Innenräume basiert auf warmen, hellen und neutralen Tönen, die Ruhe und visuelle Harmonie ausstrahlen. Im Gegensatz dazu setzen die Nassbereiche mit ihren markanteren, kontrastreichen Farben gezielt Akzente, die visuelle Highlights und eine individuelle Stimmung erzeugen. Maßgeschneiderte Einbaumöbel erfüllen nicht nur ästhetische Aufgaben, sondern decken auch den Stauraumbedarf optimal ab.
Bei der Lichtplanung wurde besonderer Wert auf versteckte und geschichtete Lösungen gelegt, die sich flexibel an verschiedene Lebenssituationen – Arbeit, Entspannung – anpassen lassen, sowohl in ihrer Funktion als auch in der Atmosphäre. Das Ergebnis der Umgestaltung ist ein modernes Zuhause, das gleichzeitig zeitgemäß und zeitlos ist und langfristig einen Mehrwert für die Eigentümer bietet.









