Moderne Neugestaltung mit klassischem Charakter
92 m² Classic Wohnung
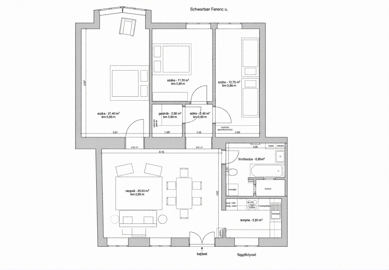
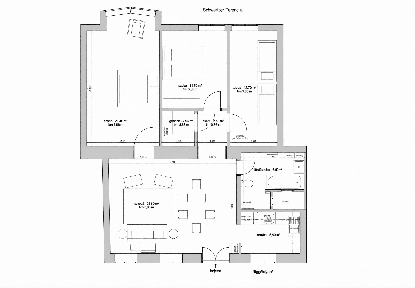
Diese 92 m² große, hochräumige bürgerliche Wohnung befindet sich im Stadtzentrum von Budapest. Ausgangspunkt des Planungsprozesses war, dass die Wohnung nicht nur ästhetisch erneuert wird, sondern zu einem langfristig funktionierenden Zuhause wird, das den Alltag der Eigentümer komfortabel, flexibel und freudvoll unterstützt.
Vor der Renovierung entsprach der technische und funktionale Zustand der Immobilie nicht den heutigen Anforderungen, daher begannen die Arbeiten mit einem Rückbau bis auf die rohen Wände. Dieser Schritt bot die Möglichkeit, die Raumstruktur unter Berücksichtigung der vorhandenen Gegebenheiten, aber mit einem völlig neuen Ansatz zu gestalten. Anstelle des ursprünglichen Grundrisses mit drei Zimmern wurden ein Wohnzimmer, ein Schlafzimmer, ein Kinderzimmer, ein Arbeitszimmer sowie ein separates Ankleidezimmer geschaffen zusammen bilden sie ein gut organisiertes, logisches und lebenswertes System.
Bei der Planung wurde besonderer Wert auf den täglichen Komfort gelegt: Die Proportionen der Räume, die Verkehrswege und die Stauraummöglichkeiten wurden so gestaltet, dass die Nutzung der Wohnung natürlich und intuitiv ist. Durch die Zusammenlegung des zuvor schwer nutzbaren separaten WCs und Badezimmers entstand ein ergonomischerer, komfortablerer Nassbereich, der im Alltag eine deutliche Qualitätsverbesserung bietet.
Auch die optimale Nutzung des natürlichen Lichts war ein entscheidender Aspekt. Die Anordnung des Wohnzimmers und der neu geschaffenen Zimmer ermöglicht, dass die Wohnung hell, gut belüftet und visuell großzügig bleibt, während sie die für bürgerliche Wohnungen typische Eleganz bewahrt.
Das Innenarchitekturkonzept basiert auf der Verwendung heller, natürlicher Materialien, die nicht nur ästhetischen Wert besitzen, sondern auch eine emotionale Bindung zwischen Raum und Bewohner schaffen. Die feminine, luftige Atmosphäre ist das Ergebnis bewusster Entscheidungen: Die Kombination von Farben, Oberflächen und feinen Details schafft ein harmonisches, zeitloses Interieur. Maßgeschneiderte Einbaumöbel und die Küche nutzen den vorhandenen Raum optimal und verbinden zeitgemäße Ästhetik mit dauerhafter visueller Qualität, ohne selbstzweckhaft zu wirken.
Das Ergebnis der Umgestaltung ist ein Zuhause, das sowohl funktional als auch emotional Mehrwert schafft: Es erfüllt nicht nur die aktuellen Lebensbedürfnisse, sondern bietet auch langfristig nachhaltige, wertbeständige Lösungen.









